貸店舗・事務所・倉庫南砺市やかた 貸店舗
| 賃料 | 153.06万円 | 管理費等 | 30,000円 | ||
|---|---|---|---|---|---|
| 敷金/保証金 | 400.00万円/- | 礼金 | 無し | ||
| 交通 | 城端線「福野駅」徒歩10分 | ||||
| 所在地 | 南砺市やかた398 | ||||
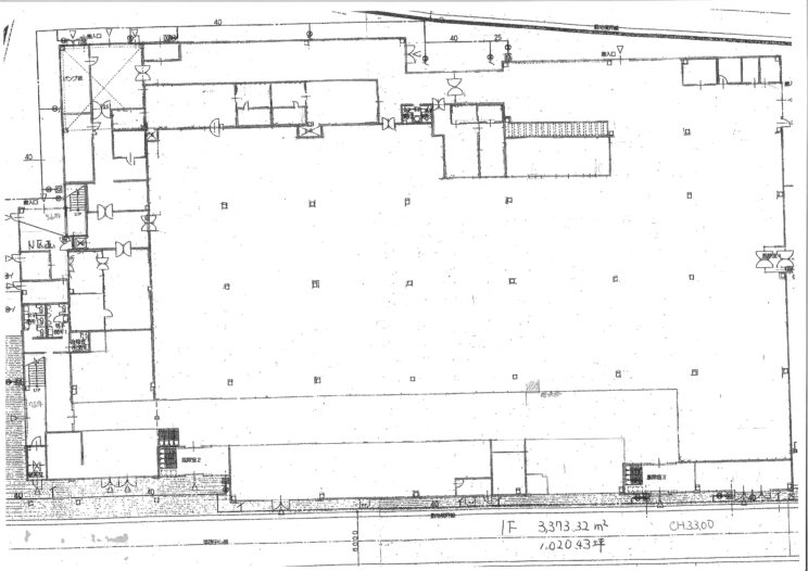
| 築年月 | 1994年6月(築31年3ヶ月) | 使用部分面積 | 3,373.33㎡ | 坪数/ 坪単価 |
1020.43坪/ 1,500円 |
●物件情報詳細
| 交通 | 城端線「福野駅」徒歩10分 | |
|---|---|---|
| 所在地 | 南砺市やかた398 | |
| 物件種目 | テナント | |
| 賃料 | 153.06万円 | 管理費等 | 30,000円 |
|---|---|---|---|
| 敷金/保証金 | 400.00万円/- | 礼金 | 無し |
| 敷引 | - | 保証金償却 | - |
| その他一時金 | - | 造作譲渡 | - |
| 維持費等 | - | 保険等 | ・家賃保証会社加入要・借家人賠償保険・日常生活賠償保険加入要 |
| 権利金 | - | 坪単価 | 1,500円 |
| 特記事項 | - |
|---|---|
| 状態 | 空き |
| 出店可能業種 | 出店業種はご相談下さい。 |
| おすすめ業種 | - |
| 設備 | - |
| 備考 | ・別途、駐車場利用地有り(別途賃料要) ・2階別途事務所スペース有り(別途賃料要) |
| 使用部分面積 | 3,373.33㎡ | 坪数 | 1020.43坪 |
|---|---|---|---|
| 土地面積 | - | 築年月 | 1994年6月(築31年3ヶ月) |
| 階建 / 階 | 2階建/1階 | 建物構造 | 鉄骨造亜鉛メッキ鋼板葺 |
| 駐車場 | 17台 | バイク置き場 | 無し |
| 駐輪場 | 無し | 接道状況 | - |
| 用途地域 | 第二種住居地域 | 間取り | - |
| 契約期間 | 3年 | 現況 | 秋 |
|---|---|---|---|
| 条件等 | 空き | 引渡し | 相談 |
| 仲介手数料 | - | ||
| 更新料 | 無し | 物件番号 | - |
| 情報公開日 | - | 次回更新予定日 | - |






























